
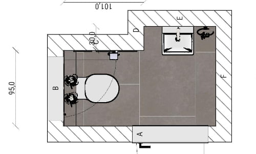
Alles was du auf kleinstem Raum brauchst: In dieser Badplanung finden die wichtigsten Badezimmer-Elemente – das WC, Handwaschbecken und ein Spiegel – ihren Platz. Durch die verschiedenfarbigen Wände und dekorative Bilder wird auch das Gäste-WC zu einem optischen Hingucker.

Das kleine Handwaschbecken eignet sich perfekt für das nur 2 qm kleine Gäste-WC.
Waschtisch und Armatur: Ideal Standard
Accessoires: Emco

WC: Ideal Standard
Drückerplatte: Geberit


