
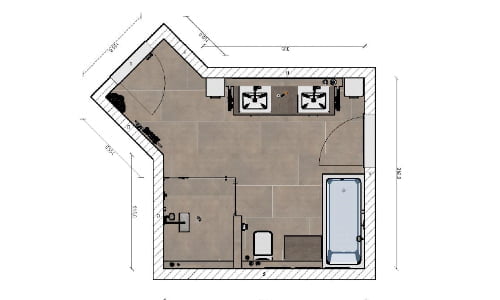
Asymmetrie? Kein Problem! Auch ein asymmetrischer Raum lässt sich perfekt nutzen. Das zeigt unsere Badidee für ein großes Familienbad mit viel Platz, großer Bewegungsfreiheit und genügend Stauraum.

Diese Badplanung bietet nicht nur ausreichend Platz, sondern auch Komfort. Die großzügige Badewanne lädt zum Verweilen und Entspannen ein. Wenn du lieber duschen als baden möchtest, kommst du hier mit der großen ebenerdigen Dusche ebenso auf deine Kosten. Die zwei Waschbecken garantieren außerdem keinen Zeitverlust bei paralleler Nutzung.
Die Einbauwaschtische und die Unterschänke sorgen für eine optimale Raumausnutzung und ausreichend Platz für alle Badutensilien. Das Badmöbel-Set wird durch zwei Hochschränke ergänzt, die weiteren Stauraum ermöglichen.
Waschtisch: Villeroy & Boch
Armatur: Hansa
Möbel: STS
Spiegel: AS

Wanne: Geberit
Armatur: Hansgrohe
Badewanne, WC & Duschplatz
Sitztruhe: STS
WC: Geberit
Drückerplatte: Geberit
Accessoires: Keuco

Duschtür: Kermi
Armatur: Hansgrohe
Badheizkörper: Bemm


