
Dieses Badezimmer strahlt voller Natürlichkeit. Frische Farben, ein großes Fenster und eine Ausstattung, die keine Wünsche offen lässt. In diesem Bad bekommt jedes Element eine eigene Nische und ist somit vor neugierigen Blicken geschützt.

Der Wunsch nach Ablagefläche und einem großen Waschtisch wird mit der L-Form erfüllt. Durch die Weiterführung der Konsolenplatte wird die Vorwand der Dusche optimal genutzt und es entstehen keine toten Ecken. Die Abtrennung bildet zeitgleich den Zugang zu einer großen, ebenerdigen Walk-In Dusche.
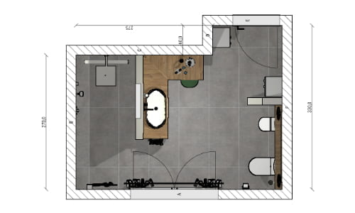
In Kombination mit frischen, bunten Fliesen und der Ablage aus Holz hat diese Badidee einen natürlichen Charme. Der mit einer Schminkecke kombinierte Waschtisch hat genügend Platz für zwei Personen und die großen Schubladen des Waschtischs bieten zudem noch viel Stauraum für andere Badacessoires.

Die Kombination aus Holz und Musterfliesen überzeugt. Nischen werden dadurch perfekt abgegrenzt und Toilette und ein Urinal in Szene gesetzt.
Urinal: Villeroy & Boch
Toilette: Geberit
Toilettenaccessoires: Keuco
Dank der Nische hast du einen hygienischen Ablageplatz für deine Pflegeprodukte und kannst auf Schmutzfänger wie Eckregale verzichten. Die ebenerdige Dusche bietet einen leichten Ein- und Ausstieg, sie trocknet schnell und dank der Unterputzarmaturen wirkt sie größer.
Duscharmaturen: Hansgrohe
Kopfbrause: Duravit


