
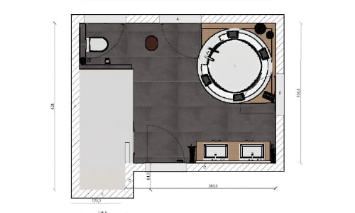
Nach einem stressigen Tag lädt dieses Badezimmer dazu ein, sich in seiner eigenen Erholungszone zu entspannen. Das Badezimmer punktet gleich mit mehreren Highlights: Die große Badewanne mit Whirlfunktion ist eins davon und bringt den Luxus direkt zu dir nach Hause.

Die Toilette ist praktischerweise durch eine halbhohe Sichtwand vom restlichen Raum abgetrennt. Der große Doppelwaschtisch kann durchaus von mehreren Personen gleichzeitig genutzt werden und bietet genügend Stauraum und Ablageflächen für eine ganze Familie.
Waschtisch: DIANA
Armatur: Hansgrohe
Möbel: Sanipa
Accessoires: Keuco
Spiegel: Sanipa

WC: Geberit
Badheizkörper: DIANA
Die große Regendusche rundet das Badezimmer ab. Sie besteht aus einem Regenpaneel von unserer Exklusivmarke DIANA und beinhaltet kleine LED-Strahler – So kommt der Komfort selbst dann zum Einsatz, wenn es mal schnell gehen soll.
Regenpaneel: DIANA
Armatur: Keuco

Wanne: Hoesch
Armatur: Hansgrohe


